Månadens fotografi, november 2023: Arkivens dag 2023 – Gissa ritningen!
Lördagen den 11 november 11.00–15.00 arrangeras Arkivens dag på Ljusdalsbygdens museum i Ljusdal. Regionarkivet kommer tillsammans med flera andra arkivinstitutioner att visa arkivmaterial på årets tema ”Färg och form”.
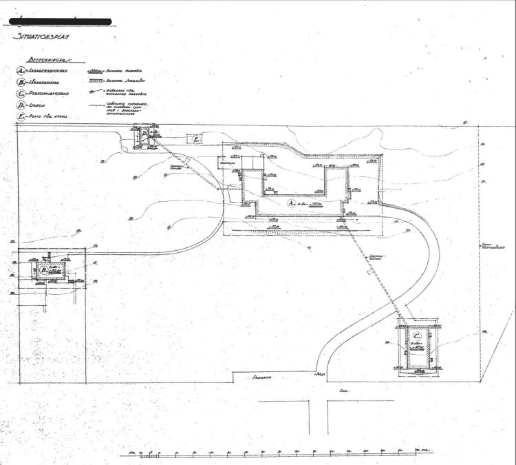
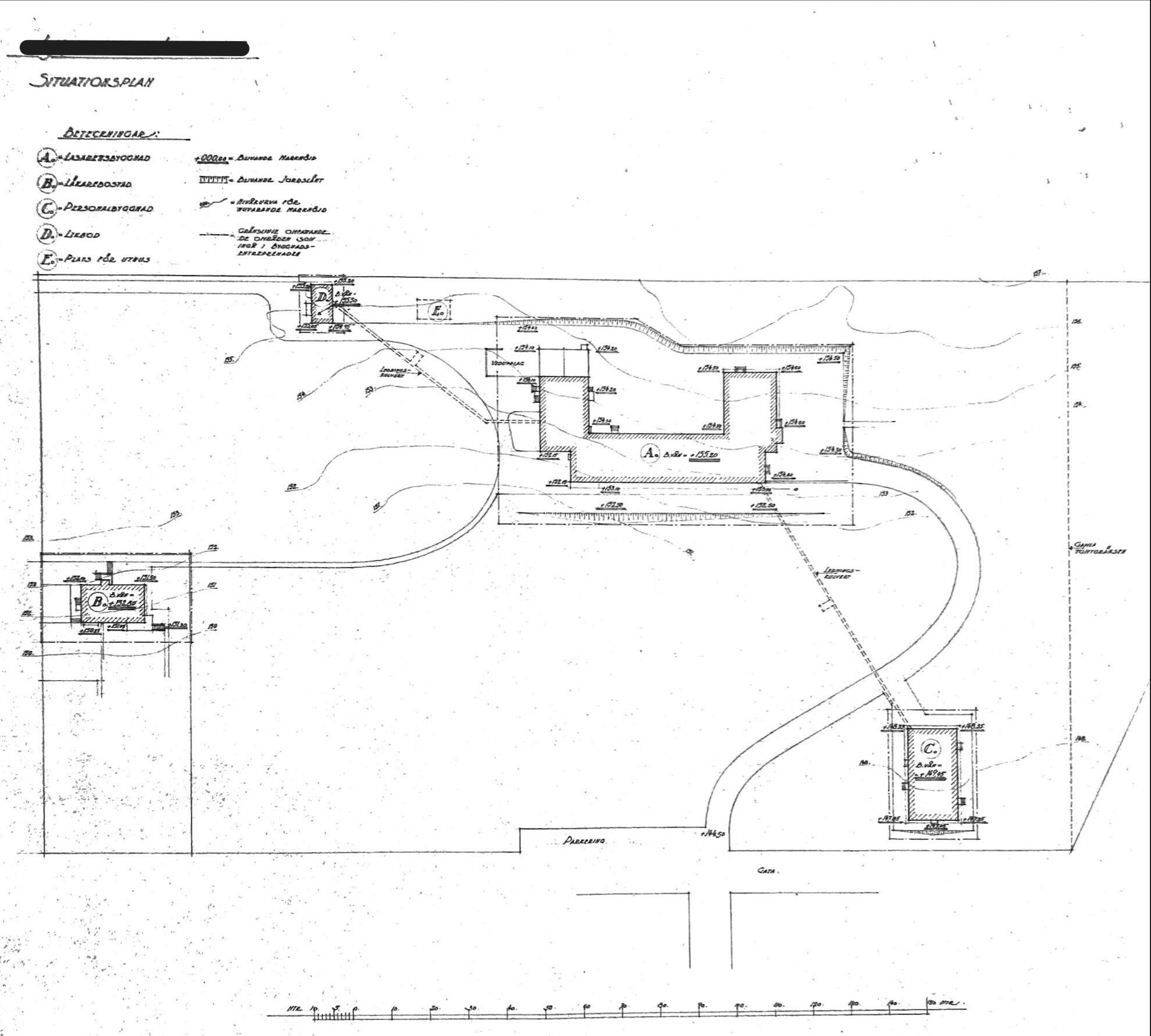
Årets tema på det nordiska evenemanget Arkivens dag är ”Färg och form”. Många tänker nog i första hand på ett arkiv som en samling ganska dammiga papper och inte en plats för färg, form och kreativa uttryck. Men regionarkivet har inför årets Arkivens dag letat bland en typ av handlingar som, tyvärr, sällan får se ljuset utanför arkivets väggar och som verkligen knyter an till årets inspirerande tema, nämligen ritningarna.
Regionarkivet har ett omfattande bestånd av ritningar från alla regionens verksamheter, daterade från 1800-talet till 2000-tal. Bland ritningarna finns inte bara lasaretten, sjukhusen och hälsocentralerna – här finns också skolor, ekonomibyggnader, avloppsystem, hissar och mycket annat. De tidiga ritningarna vittnar om ett otroligt handarbete, med mycket detaljer och vackra handstilar. Genom decennierna blir stilen stramare, både i arkitekturen och ritningarnas utformning, men visar likväl på kreativitet och handens uttryck.
Till månadens fotografi har regionarkivet valt ut några av dessa ritningar, men här är alla byggnaders namn och/eller geografiska plats borttagna. Kan du gissa vilka byggnader som ritningarna visar eller var byggnaderna låg?
Lösningarna presenteras i månadens fotografi i januari 2024.






